O PROJEKTE

JEDINEČNÝ KONCEPT "REZORTU 4 STODOLY" BEZ KONKURENCIE V DANEJ LOKALITE
KOMPLETNE VYBAVENÉ NÍZKOENERGETICKÉ RODINNÉ DOMY A0
S POZEMKOM A V 100% VLASTNÍCTVE INVESTORA
POUŽITIE VÝHRADNE EKOLOGICKÝCH MATERIÁLOV
RÝCHLA NÁVRATNOSŤ INVESTÍCIE
KOMPLETNE ZABEZPEČENÁ SPRÁVA NEHNUTEĽNOSTÍ
ATRAKTÍVNY PASÍVNY PRÍJEM Z KRÁTKODOBÉHO PRENÁJMU
KAŽDOROČNÝ NÁRAST HODNOTY NEHNUTEĽNOSTI
RÝCHLA DOSTUPNOSŤ - CCA 1 HODINA OD BRATISLAVY

Koncept "Vidiecky rezort Štyri stodoly" tvorí jedinečný komplex štyroch štýlových domov v malebnom prostredí na Myjavských kopaniciach, spájajúci tradičné regionálne prvky s moderným komfortným bývaním, elegantnou jednoduchosťou a variabilnou rafinovanosťou.
Architektonické členenie domov je navrhnuté s prihliadnutím na zachovanie pôvodnej štruktúry kopaničiarskeho osídlenia podjavorinského a myjavského regiónu ako náhrada za pôvodné objekty.
Čisté, ekologicky nezávadné prostredie predurčuje túto vyhľadávanú lokalitu ako ideálne miesto na relax v každom ročnom období. Malebnú atmosféru s nezameniteľným pocitom kľudu na slnečnom pozemku umocňujú majestátne storočné hrušky a ďalšie ovocné stromy v okolí, typické pre túto lokalitu.
Dispozičné riešenie domov je navrhnuté s prihliadnutím na zabezpečenie komfortu a zároveň súkromia pre každého. Navyše ponúka variabilitu ideálnu pre účely poskytovania krátkodobého prenájmu pre individuálnu rekreáciu či poriadanie teambuildingov, rôznych skupinových aktivít alebo klubových stretávok počas celého roka.
K pohodliu prispieva prístup z udržiavanej asfaltovej cesty a súkromné parkovanie pre viacero áut pri každom dome.
Okolitá príroda a prostredie ponúkajú široké možnosti voľnočasových aktivít. Milovníci tradícií, nedotknutej prírody, nádherných scenérií, cykloturistiky, turistiky, bežkovania, hubárčenia, rybolovu, záhradkárčenia či motorkári. Každý si nájde to svoje.....
Zvyšujúcim sa dopytom po individuálnej domácej rekreácii a deficitu ubytovacích kapacít v tejto lokalite, ponúka projekt "Vidiecky rezort Štyri stodoly" jedinečnú možnosť investície s garantovaným výnosom.

ARCHITEKTÚRA, DISPOZÍCIA, TECHNICKÉ PARAMETRE

Novostavby boli navrhnuté na parcelách, kde pôvodne stáli domy z nepálených tehál. Architektúrou aj osadením odkazujú jednopodlažné rodinné domy s obytným podkrovím a sedlovou strechou na typické vidiecke domy so zachovaním väčšinových proporcií pôvodných stavieb. Architektúra bola inšpirovaná tradičnými formami s rešpektom na kontext lokality. Spája praktickosť s estetikou
Kategoricky sú stavby zaradené medzi RODINNÉ DOMY energetickej triedy A0.
Kombináciou tehly a dreva na fasáde pripomínajú domy vidiecku stodolu, no premyslené prvky od výberu materiálov, dispozičného a technického riešenia sú na úrovni 21. storočia. Zodpovedajú požiadavkám na nízkoenergetický štandard a využívajú komfort vyspelých technológii ako efektívne a komfortné vykurovanie a chladenie tepelným čerpadlom, hybridný energeticky nenáročný bojler na ohrev vody, doplnkové elektrické podlahové kúrenie v kúpeľniach či inteligentné riadenie s ovládaním na diaľku.
Pri výbere materiálov je kladený dôraz na použitie výhradne ekologických, netoxických, udržateľných prírodných materiálov s minimálnym vplyvom na životné prostredie vrátane kompletného účelového zariadenia a vybavenie s ľahkou údržbou.
Konštrukcia je jednovrstvová s použitím kvalitného porobetónu Ytong 500, čo zachováva vysokú kvalitu domu a dlhodobú udržateľnosť a prepožičiava mu harmonický súbor funkčných vlastností ako je tepelná izolácia, tepelná akumulácia, zotrvačnosť a difúzna otvorenosť. Samozrejmosťou sú okná s izolačnými trojsklami.


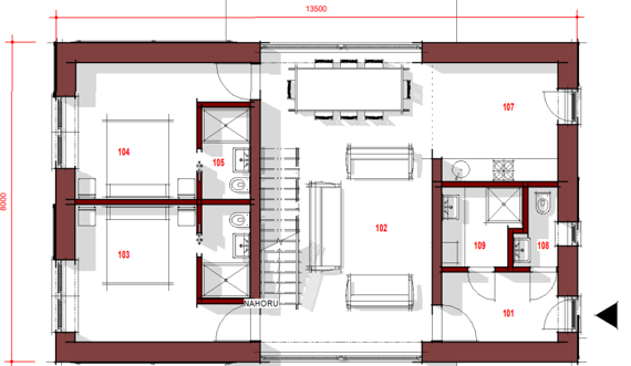
Dispozične tvorí veľkú časť prízemia spoločný obývací priestor s jedálenskou časťou, ktoré sú prepojené s kuchyňou a výstupom na vonkajšiu terasu. Tento hlavný komunikačný uzol s otvoreným stropom je zároveň prepojený s dvoma samostatnými spálňami vrátane kúpelní na prízemí, ďalšou priestrannou kúpelňou a samostatným WC a minimalistickým schodiskom vedúcim k ďalším dvom spálňam prepojeným elegatnou lávkou na poschodí. Atraktivitu priestoru dodáva tiež loftová časť jednej z horných miestností, ktorá môže slúžiť ako spálňa alebo ako štýlový priestor na oddych.
Vonkajšia terasa každého domu ponúka jedinečný priestor na relax s prirodzeným prepojením na upravený dvor s rešpektom na súkromie ale aj možnosti využitia priestoru komunitného charakteru.
Nezabudnuteľnú idylku pod holým nebom zaručuje kúpeľ v tradičnej drevenej kúpacej kadi s pieckou aj praskajúci oheň, príjemné svetlá a zážitok z tradičnej fínskej sauny. Gril a pohodlné posedenie umocňujú pocit dokonalého oddychu s rodinou či priateľmi, ktorý tento jedinečný "vidiecky rezort" ponúka.


LOKALITA


Kopaničiarsky región, veľmi populárna chalupárska oblasť na západnom Slovensku, na moravsko-slovenskom pomedzí ktorá sa rozprestiera medzi Malými Karpatami a Bielymi Karpatami na Myjavskej pahorkatine. Kopanice patria medzi najkrajšie miesta na Slovensku na rekreačnú turistiku, sú rajom pre cyklistov a medzi obľúbené lokality ich vďaka čarovným scenériam zaraďujú aj motorkári. Blízkosť svetovo známych kúpeľov v Piešťanoch, Smrdákoch či Trenčianskych Tepliciach ocenia zasa tí, ktorí obľubujú blahodárne účinky prírodných liečebných zdrojov a procedúr.
Krásny, slnečný pozemok v Trenčianskom kraji, v katastrálnom území mesta Stará Turá – časť Černochov vrch je umiestnený v mierne zastavanom území obce, mimo chránených území a ich ochranných pásiem, v blízkosti rekreačnej oblasti – vodných nádrží Dubník I. a Dubník II. Prístup na pozemok je z udržiavanej obecnej asfaltovej cesty.
Tichá lokalita s dostupnosťou 7 minút autom do centra Starej Turej a 7 minút do centra Myjavy s kompletnou občianskou vybavenosťou. V okolí sa nachádzajú rodinné a rekreačné domy a nespočetné množstvo športových, kultúrnych aj historických atraktivít.
Napojenie na diaľnicu smer BA/Žilina je približne 20 km od rezortu. (Nové mesto nad Váhom/15 km, Trenčín/40 km, Piešťany/40 km, Žilina/110 km, Bratislava/120 km).
Lokalita "Myjavských kopaníc" je veľmi atraktívna vďaka rýchlej dostupnosti z diaľnice D1 (cca 1 hodina z BA), nádhernému, tichému a najmä čistému, zdravému a ekologicky nezávadnému prostrediu so širokými možnosťami rekreačného vyžitia. Ideálna oblasť na relax, psychohygienu, yogu,cykloturistiku, spanilé jazdy na motorkách, turistiku, rybolov, záhradkárčenie a mnoho iného.

KAM V OKOLÍ
VODNÁ NÁDRŽ DUBNÍK I. a DUBNÍK II. - Stará Turá - 2 km (kúpanie, vodné športy, člnkovanie, vodné bicykle, rybolov, hudobné festivaly, zrazy motorkárov, rybárske preteky...)
TURISTICKÉ, CYKLOTURISTICKÉ, MOTORKÁRSKE A BEŽKÁRSKE TRATE (Veľká Javorina, Bradlo, Vrch Roh, Čachtice, Hrad Branč, Hrad Beckov)
SKILAND STARÁ MYJAVA - Stará Myjava - 12 km (lyžiarske stredisko)
JAZDECKÝ KLUB - Bukovec - 17 km ( prenájom, ustajnenie a výcvik koní )
ŠPORTOVISKÁ - Stará Turá 2 km (plaváreň, mestská športová hala, kolkáreň, stolnotenisová hala, tenisový klub, futbalový štadión, ihrisko s umelou trávou a športové centrum Priemyslovka)
KÚPELE PIEŠŤANY – 29 km (svetoznáme kúpele s 200 ročnou tradíciou zamerané na moderné metódy liečby reumatizmu a iných ochorení pohybového aparátu vďaka prírodným liečivým zdrojom ako termálna minerálna voda a unikátne sírne liečivé bahno )
KÚPELE SMRDÁKY – 30 km (známe jedinečným zložením prírodnej minerálnej vody s vysokým obsahom sírovodíka. Patria medzi najúčinnejšie slovenské kúpele na liečbu neinfekčných kožných chorôb i ochorení pohybového aparátu)
KÚPELE TRENČIANSKE TEPLICE – 56 km (zaoberajú sa liečbou a prevenciou ochorení pohybového ústrojenstva, stavov po operáciách a úrazoch, chronických reumatických ochorení, niektorých civilizačných chorôb, chorôb z povolania a liečbou psoriázy )
KULTÚRNE A HISTORICKÉ PAMIATKY - ( Múzeum M. R. Štefánika/Mohyla M. R. Štefánika – Brezová pod Bradlom, Čachtický hrad, hrad Beckov, hrad Branč, Múzeum Moravské Lieskové, Skanzen Strážnice...)
GAZDOVSKÝ DVOR TURÁ LÚKA - 9 km ( stála expozícia, ktorá zobrazuje tradičnú formu bývania v typickej kopaničiarskej usadlosti v myjavskom regióne z konca 19. storočia)
BIOFARMA CHAROLAIS Podkylava - 12 km ( biochov unikátneho hovädzieho dobytka Charolais a Highland Cattle a sprievodné podujatia spojené s priblížením života v reálnom farmárskom prostredí)
KOPANIČIARSKA OVOCNO DESTILÁTOVÁ CESTA A OSKORUŠOVÁ STEZKA (aktívne trávenie voľného času v regióne s možnosťou návštevy centier spracovania ovocia, ktorá je spojená s degustáciou miestnych produktov (džemy, medy, sirupy, koláče, nápoje...)
VIOLET HILL - Poriadie - 5 km (levanduľová farma)
ROZPRÁVKOVÝ DOM Jablonka - 4 km (rarita na Myjavských kopaniciach – domček postavený polievkovou lyžicou)
MINI FARMA Lubina - 13 km (kontaktná ZOO)
PENATI GOLF RESORT / PENATI GOLF ACADEMY - Šajdíkove Humence - 30 km (golfové ihrisko, golfová akadémia...)
AEROKLUB SENICA - Senica - 31 km ( súkromné, zážitkové, športové lety, tandemové zoskoky padákom, výcvik...)





STAŇTE SA SÚČASŤOU JEDINEČNÉHO KONCEPTU "ŠTYRI STODOLY"
ATRAKTÍVNE A BEZPEČNE ZHODNOŤTE VAŠE FINANČNÉ PROSTRIEDKY
ZABEZPEČTE VAŠE FINANCIE PRED RIZIKOM INFLÁCIE
ZÍSKAJTE BEZSTAROSTNÝ PASÍVNY PRÍJEM
PROFITUJTE Z VLASTNEJ NEHNUTEĽNOSTI A VYUŽÍVAJTE MAJITEĽSKÉ BENEFITY
